Oblon metalic ALA pentru adapost civil
5.675,00 lei – 7.788,00 leiGama de prețuri: 5.675,00 lei până la 7.788,00 lei incl. TVA

Oblon metalic ALA pentru adapost civil
5.675,00 lei – 7.788,00 leiGama de prețuri: 5.675,00 lei până la 7.788,00 lei incl. TVA
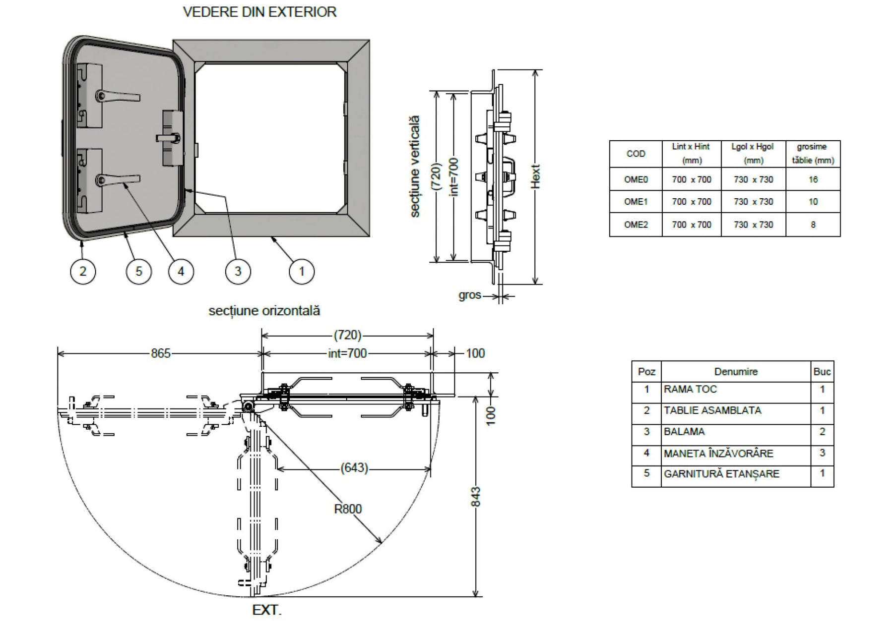
Oblonul metalic ALA este proiectat pentru inchiderea si protectia adaposturilor civile, asigurand rezistenta mecanica ridicata si etanseitate. Constructia din otel si garnitura EPDM garanteaza siguranta si functionalitatea in conditii de urgenta.
- Descriere
- Informații suplimentare
Descriere
Oblonul ALA pentru adapost civil este conceput sa raspunda cerintelor stricte de securitate si protectie in spatiile de refugiu.
✔ Rama robusta – realizata din profile de otel laminate, sudate pentru rezistenta structurala sporita.
✔ Tablie din otel – grosimea ajustata in functie de cerintele de protectie, pentru o bariera solida.
✔ Balamale sudate – 2 balamale montate direct pe toc si tablie, pentru deschidere sigura si durabila.
✔ Manere de inzavorare – 3 manere robuste pentru o fixare ferma si sigura.
✔ Etansare eficienta – garnitura EPDM 15×20 mm pe contur, rezistenta la temperatura si intemperii.
✔ Sistem de urgenta – deblocare din interior prin actionarea surubului M24 cu cheie speciala, pentru siguranta maxima.
✔ Dimensiuni precise – gol montaj 730×730 mm, deschidere utila 700×700 mm.
Oblonul metalic ALA este esential pentru echiparea adaposturilor civile, garantand siguranta, etanseitate si rezistenta in situatii critice.
Informații suplimentare
| Tip produs | Oblon metalic pentru adapost civil |
|---|---|
| Model | OME0, OME1, OME2 |
| Structura | 730 × 730 mm |
| Dimensiune gol montaj | 700 × 700 mm |
| Dimensiune utila | 700 × 700 mm |
| Tablie | Tabla de otel, grosime variabila |
| Balamale | 2, sudate direct pe toc si tablie |
| Manere inzavorare | 3 robuste |
| Garnitura | EPDM 15 × 20 mm, perimetrala |
| Deblocare de urgenta | Din interior, prin surub M24 cu cheie speciala |
| Utilizare | Adaposturi civile, spatii de refugiu |
Produse similare









